Product Description
FC-300 - Channel Frame, 300 lbs. sqft loading
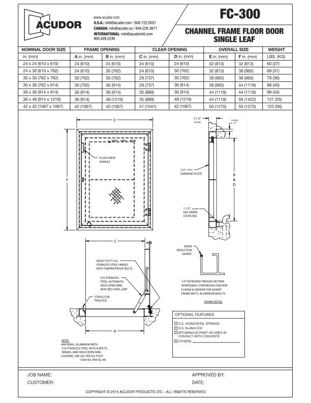
Indoor or Outdoor applications where dirt and water are prevented from falling into work area. Drainage is provided through threaded coupling in channel
36in x 36in, Channel Frame, 300 lbs./sqft loading
(914.4mm) x (914.4mm)
Product Features
- Channel frame construction with 1 1/2” drainage coupling and integral anchor flange is designed to be cast into concrete
- Diamond plate door panel is equipped with a flush aluminum drop handle and an automatic hold open arm
FC-300 Floor Door Specifications:
- Material: Aluminum door and frame; stainless steel hinges and hardware
- Door: 1/4" aluminum diamond plate reinforced for live load of 300 pounds/sq. ft.
- Frame: Angle frame fabricated from aluminum extrusion with an integral 1" anchor flange
- Hinge: Stainless steel butt hinges with tamperproof stainless steel bolts and nuts
- Opening Device: Automatic hold open arm with red vinyl grip allows door panel to open to 90 degrees, locking door in open position, and allowing for easy control when closing door panel. When required, stainless steel compression springs can be provided to add lift assistance. Available with electrical actuators, operated by wall mounted push button switch, and remote control
- Standard Latch: Flush aluminum drop handle with staple for padlock. Also available
- Finish: Mill finish, with optional bituminous coating on exterior of frame
Technical Documentation:


Note: This access panel is also commonly referred to as an access door — a term used interchangeably in the construction, commercial, and building supply industry.
-
Description


Product Description
FC-300 - Channel Frame, 300 lbs. sqft loadingIndoor or Outdoor applications where dirt and water are prevented from falling into work area. Drainage is provided through threaded coupling in channel
36in x 36in, Channel Frame, 300 lbs./sqft loading
(914.4mm) x (914.4mm)Product Features
- Channel frame construction with 1 1/2” drainage coupling and integral anchor flange is designed to be cast into concrete
- Diamond plate door panel is equipped with a flush aluminum drop handle and an automatic hold open arm
FC-300 Floor Door Specifications:
- Material: Aluminum door and frame; stainless steel hinges and hardware
- Door: 1/4" aluminum diamond plate reinforced for live load of 300 pounds/sq. ft.
- Frame: Angle frame fabricated from aluminum extrusion with an integral 1" anchor flange
- Hinge: Stainless steel butt hinges with tamperproof stainless steel bolts and nuts
- Opening Device: Automatic hold open arm with red vinyl grip allows door panel to open to 90 degrees, locking door in open position, and allowing for easy control when closing door panel. When required, stainless steel compression springs can be provided to add lift assistance. Available with electrical actuators, operated by wall mounted push button switch, and remote control
- Standard Latch: Flush aluminum drop handle with staple for padlock. Also available
- Finish: Mill finish, with optional bituminous coating on exterior of frame
Technical Documentation:


Note: This access panel is also commonly referred to as an access door — a term used interchangeably in the construction, commercial, and building supply industry.